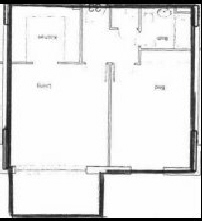
Medland House:
- One Large Double Bedroom.
- One Bathroom.
- First Floor.
- Balcony
- Fantastic Views of
Marina.
- On-Site Porter.
- Secure Parking.
- 3 Minutes walk to
Limehouse DLR (15 mins to Bank).
- 15 Minutes walk to Canary
Wharf.
This
is an excellent, large one bedroom flat, in
Medland House, with terrific views over Limehouse
Basin and the Waterfall and Fountain water
feature.
|